Portfolio

Sebright Road

Introduction

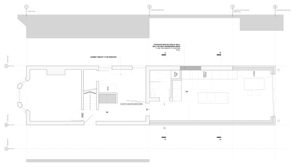
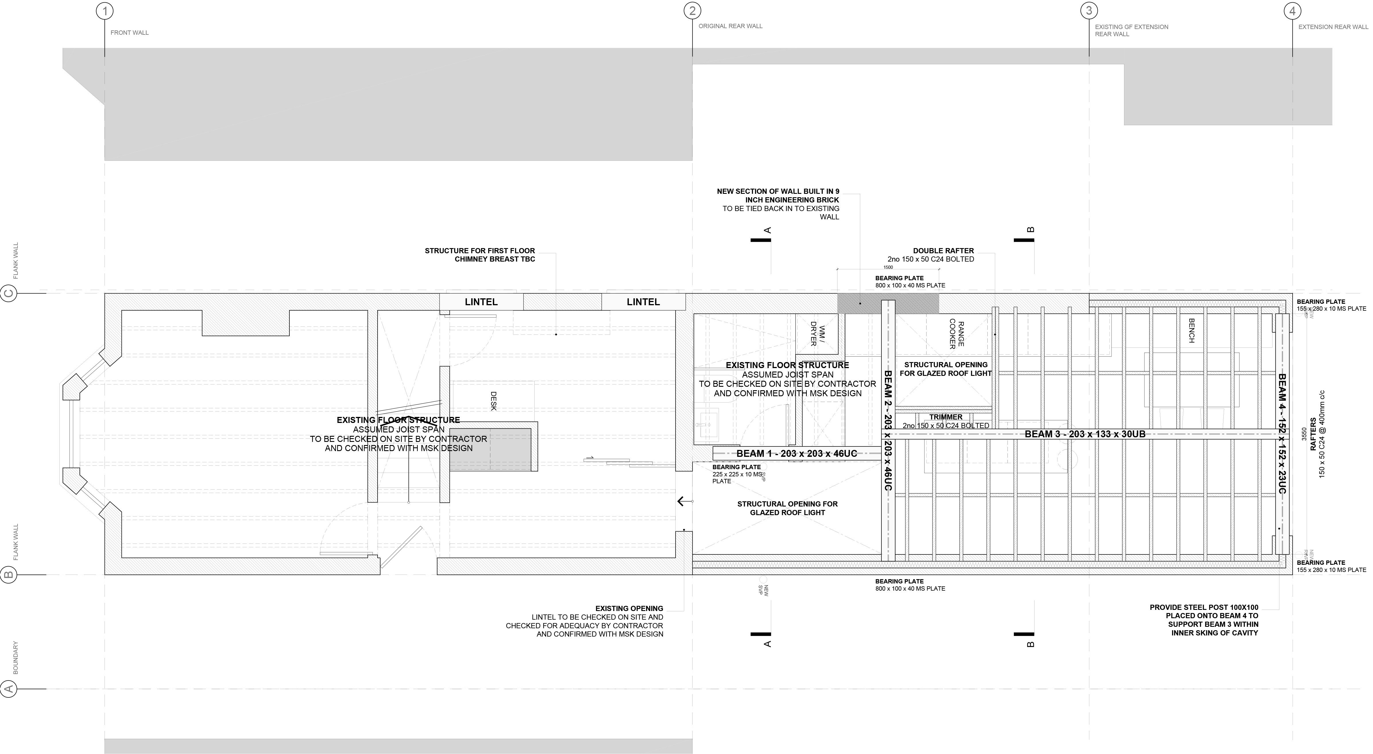
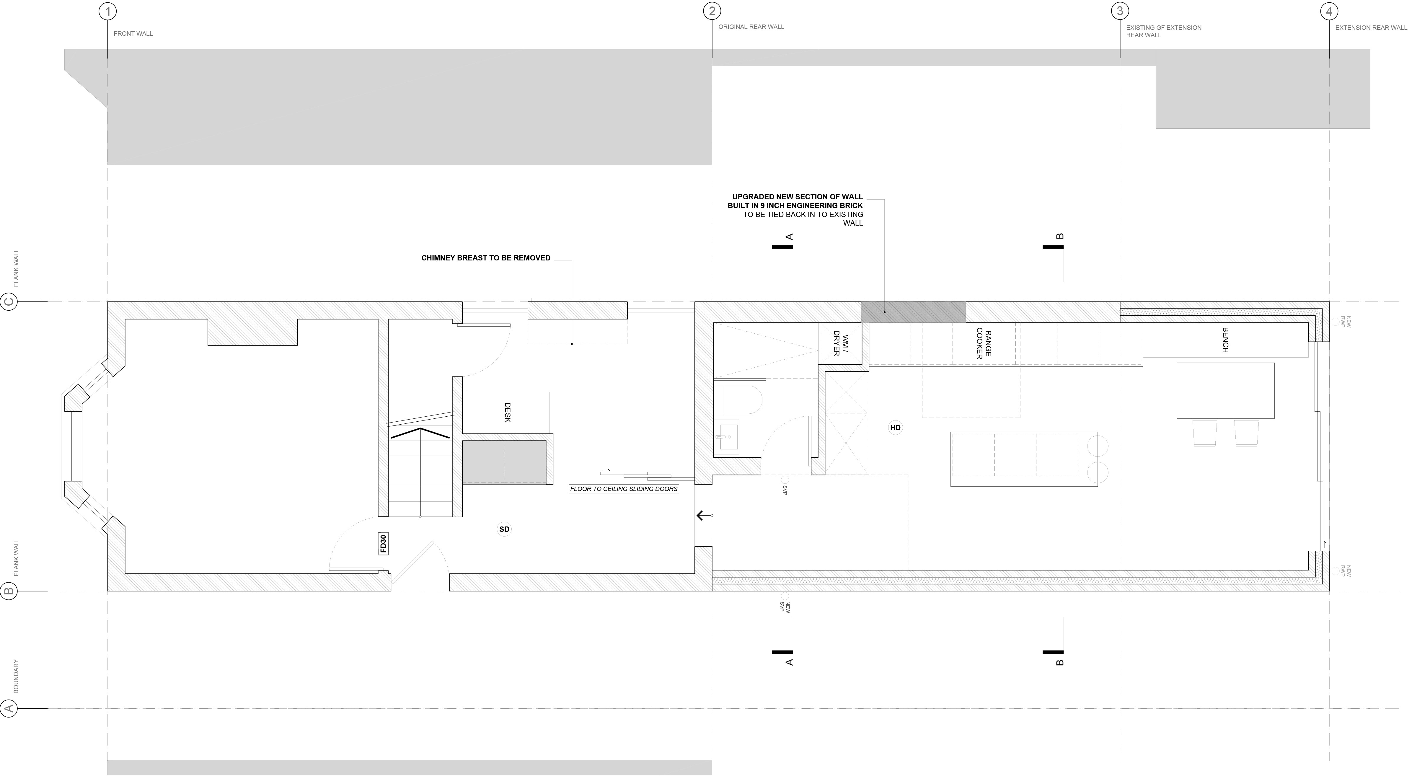
Sebright Road comprises of a rear extension to a slim detached family home in Barnet, London. The client’s required more living space for a young, growing family with an additional bathroom and adaptable 4th bedroom / home office on the ground floor. By enlarging the existing ground floor rear extension to the side and rear we created an enlarged open-plan kitchen dining area with views out onto the garden. Rear sliding doors with views out on to the garden and two strategically-placed large rooflights bring natural light into the new kitchen and hallway. With the entrance door located in the side passage and directly in front of the staircase, we enlarged the cramped entrance hallway to create a more generous entrance to the house and included storage space for coats and shoes.

 

—————————————————————————————————————————————————-

Description

Project Works:

Obtain planning permission and Building Control approval to extend a small family dwelling to the side and rear.

Project Brief:

A single storey ground floor extension to the side and rear, with provisions for:

  • An open plan kitchen / dining area.
  • Large doors to the garden.
  • A ground floor shower room.
  • A ground floor bedroom / office.
  • A large entrance hallway.

Project Involvement:

RIBA work stages 0-4.

  • Design inception, concept design, design development, technical design.

Project Requirements:

  • A site survey of the existing property and site
  • Generate design concepts addressing the client’s requirements and planning policy
  • Obtaining planning permission for works carried out
  • Obtaining building control approval for works carried out
  • Full construction drawings and design, including structural detailing

—————————————————————————————————————————————————-

Details

Project Completion: Awaiting
Project Value: £100,000

—————————————————————————————————————————————————-

Date: