Portfolio

Quinta Drive EN5

Introduction

Residential Ground Floor Extension
 
—————————————————————————————————————————————————-

Description

Project Works:

Obtain Planning Permission and Building Control approval to extend a single family dwelling. Assist with Party Wall Agreement matters. Prepare construction and fit out detailing for all works on site.

Project Brief:

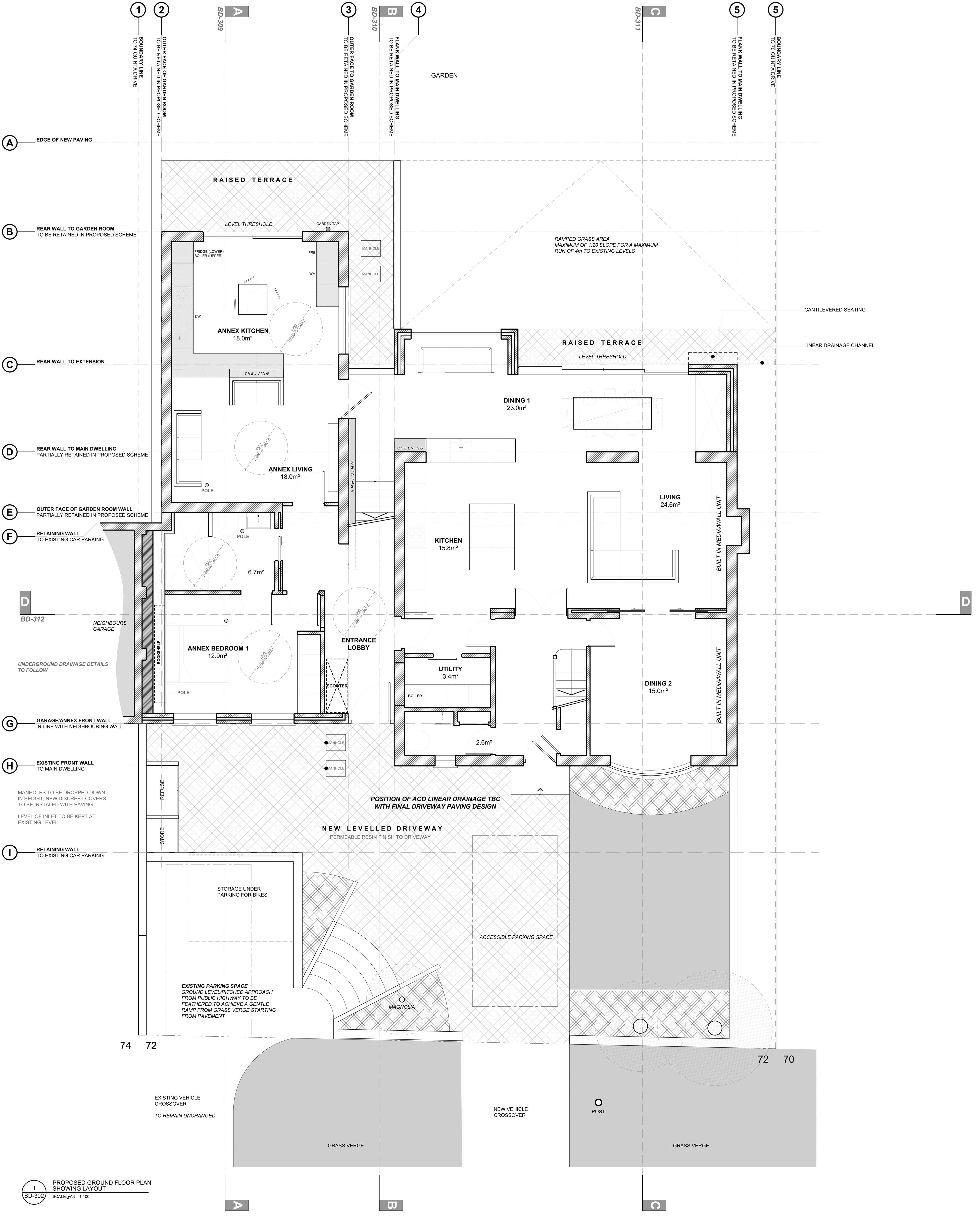
Extend residential dwelling to the side and rear with:
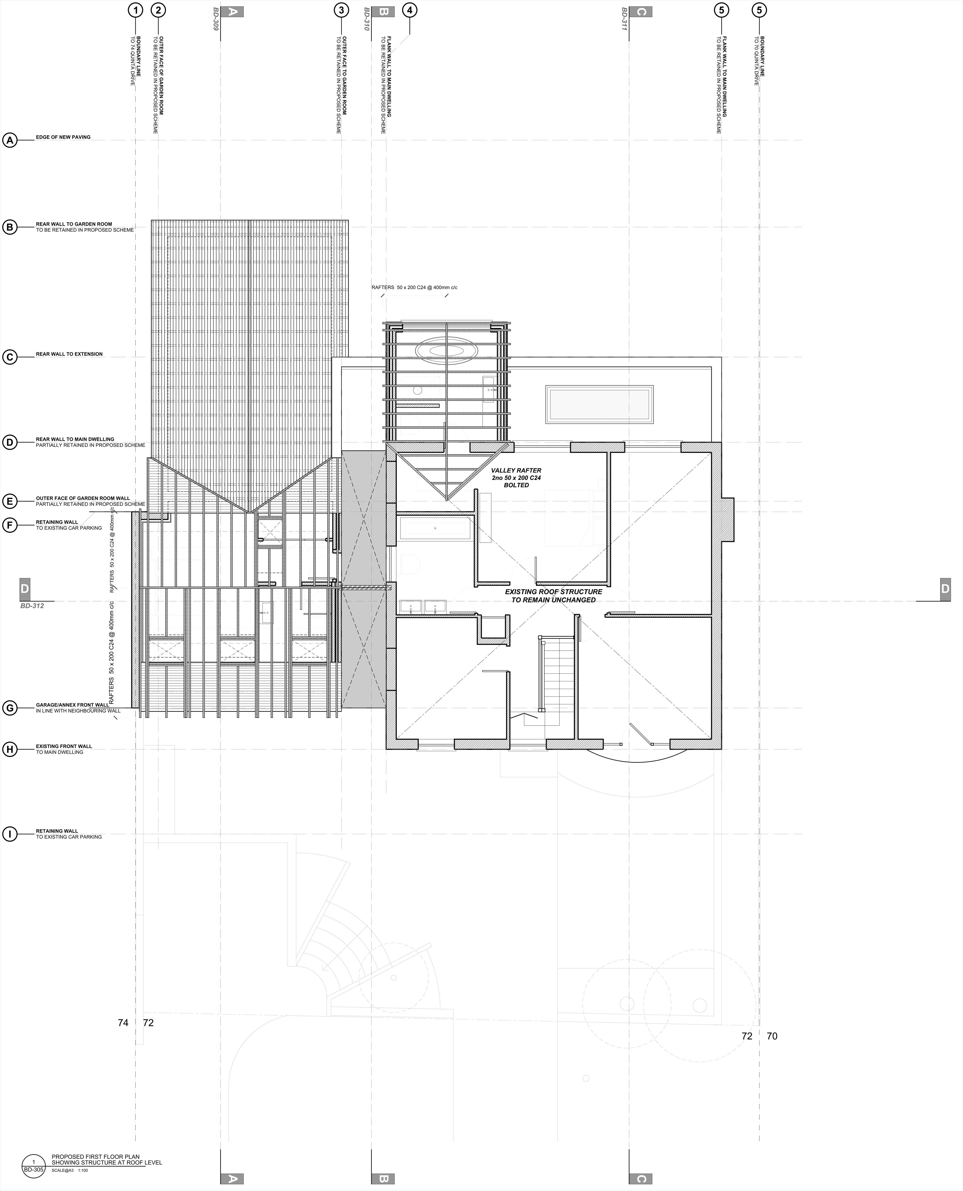
  • Part single part two storey rear extension.
  • New annex with glass link to main dwelling.
  • Re-configure internal spatial environment to promote a contemporary living space for a large family, with provisions for full accessibility and wheelchair access across the ground floor.

    Interiors to provide an open plan living and dining space to the rear, with a seamless transition to the garden. Vistas onto the garden are to be maximised with glazed walls and large sliding doors. Interiors to be illuminated with architectural mood lighting, bespoke furniture and a bespoke floating staircase with integrated bookshelf required as part of the interior fit out.

    Project Involvement:

    RIBA work stages A-H

    • Design inception, development, implementation.

    Project Requirements:

    • Survey site for spatial planning and building control purposes.
    • Generate spatial design concepts addressing clients requirements, develop design in accordance with client’s needs and budget.
    • Obtaining planning approval for all works carried out.
    • Obtaining building control approval for all works carried out.
    • Provision of full construction drawings including structural detailing and fit out detailing.
    • Monitor quality of works, oversee setting out of interior fixtures fittings and installations.

    —————————————————————————————————————————————————-

    Details

    Project Completion: Current
    Project Value: £200,000.000

    —————————————————————————————————————————————————-

Date: