Portfolio

Lawrence Street

Description

Project Works:

Obtain planning permission and Building Control approval to extend dwelling. Assist with Party Wall Agreement matters. Prepare construction and fit out detailing for all works on site.

Project Brief:

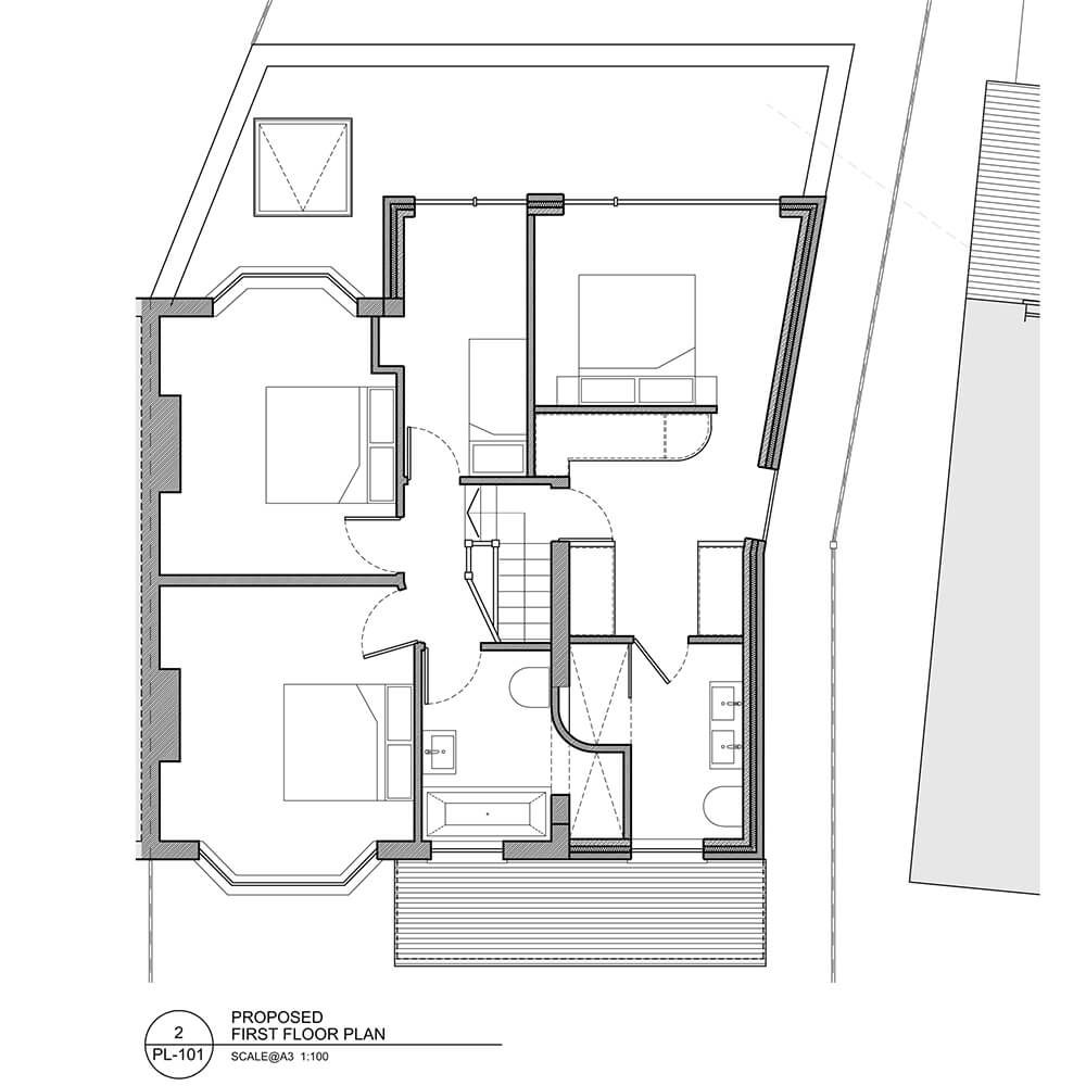
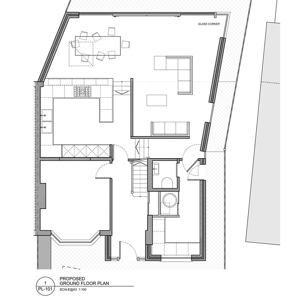
  • Extend residential dwelling to the rear and side of the ground and first floor levels. New raised terrace to the garden, achieving a level threshold and continuous flow of a tiled surface from the ground floor living/dining area into the garden terrace. New front porch to promote a contemporary feel on the approach and entrance into the dwelling. Works to include the demolition of garage and existing conservatory.
  • Spatial environment to have the ability to be open plan and free flowing as a dwelling when entertaining guests.
  • Client is seeking for a contemporary living space, that is open plan but naturally zoned for Kitchen, Dining and Living spaces.
  • Client is seeking an additional Mater Bedroom Suite, with a walk-in wardrobe area and en-suite.

Project Involvement:

RIBA work stages A-H

  • Design inception, development, tender

Project Requirements:

  • Survey site for spatial planning and building control purposes.
  • Generate spatial design concepts addressing clients requirements, develop design in accordance with client’s needs and budget.
  • Obtaining planning approval for all works carried out.
  • Obtaining building control approval for all works carried out.
  • Provision of full construction drawings including structural detailing and fit out detailing.

 
—————————————————————————————————————————————————-

Details

Project Completion: March 2014
Project Value: £170,000.00

—————————————————————————————————————————————————-

Date: