Portfolio

Houndsden N21

Introduction

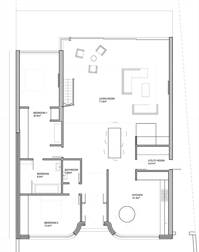
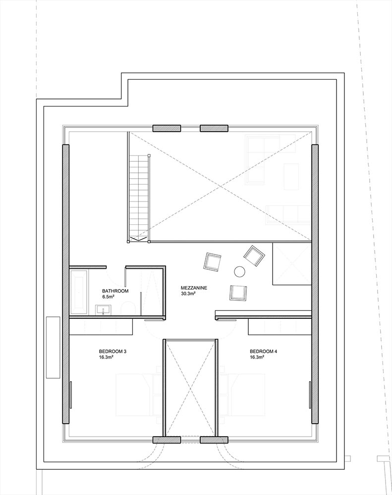
HOUNSDEN – New Build Residential

—————————————————————————————————————————————————-

Description

Project Works:

Obtain planning permission and Building Control approval for a single storey rear extension and raised terrace with basement storage area.

Type:

New Build Residential dwelling

Status:

Pre-Planning

Works:

Architectural design, Interior design, Planning, Structural design.

A new build residential development seeking for the demolition of a detached dwelling and erection of a new dwelling adopting an Art Deco style.

The approach for the interior design is currently a fusion of Art Deco with Contemporary.

Works are currently at pre-planning stage with the local authority.

Works for the interior design are currently at concept stage and will not be finalised until after planning consent has been granted. The visuals shown are being used to address interior concepts for fit out.

—————————————————————————————————————————————————-

Details

Location: London

—————————————————————————————————————————————————-

Date: