Portfolio

Greenwich, SE10

Introduction

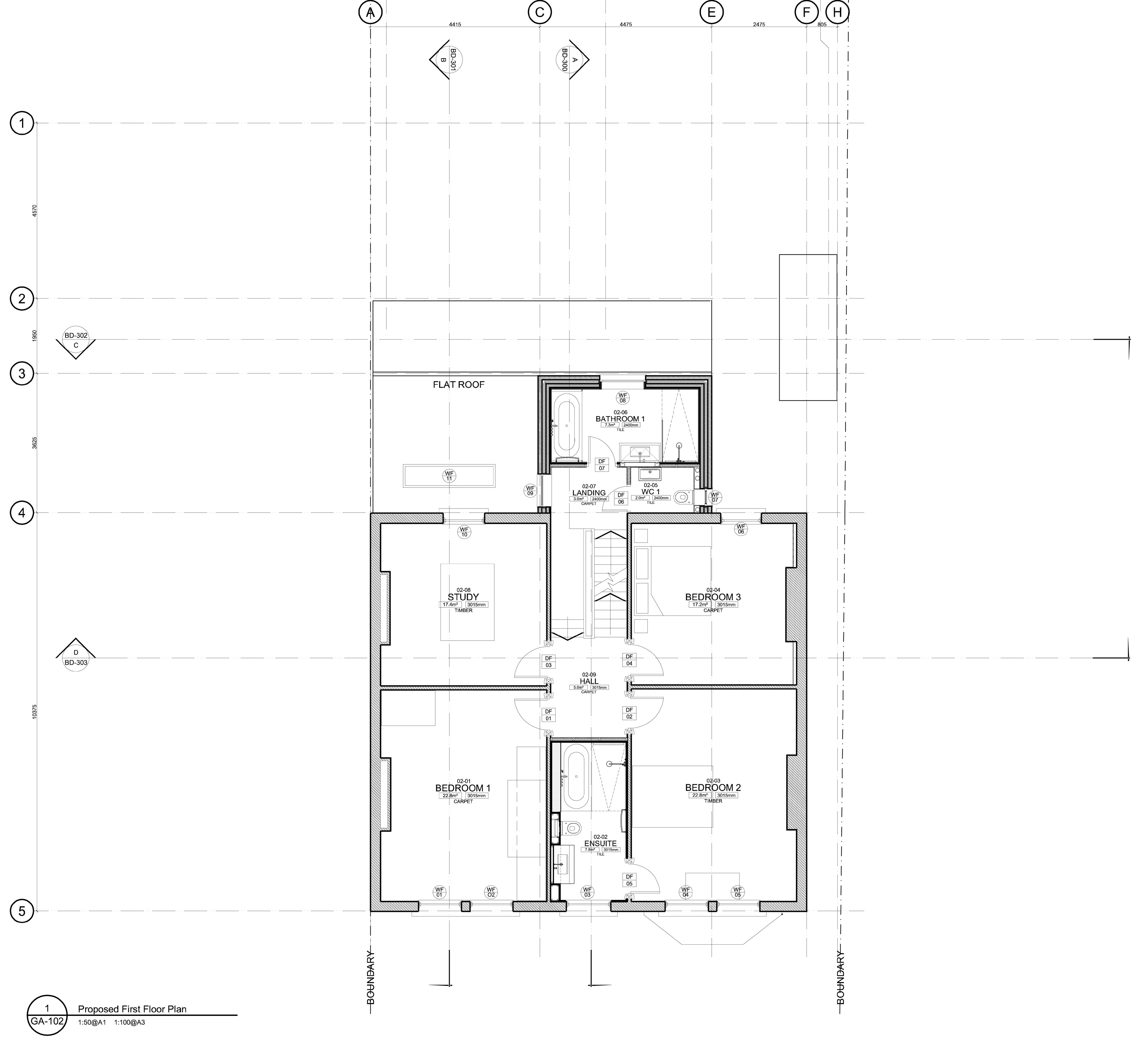
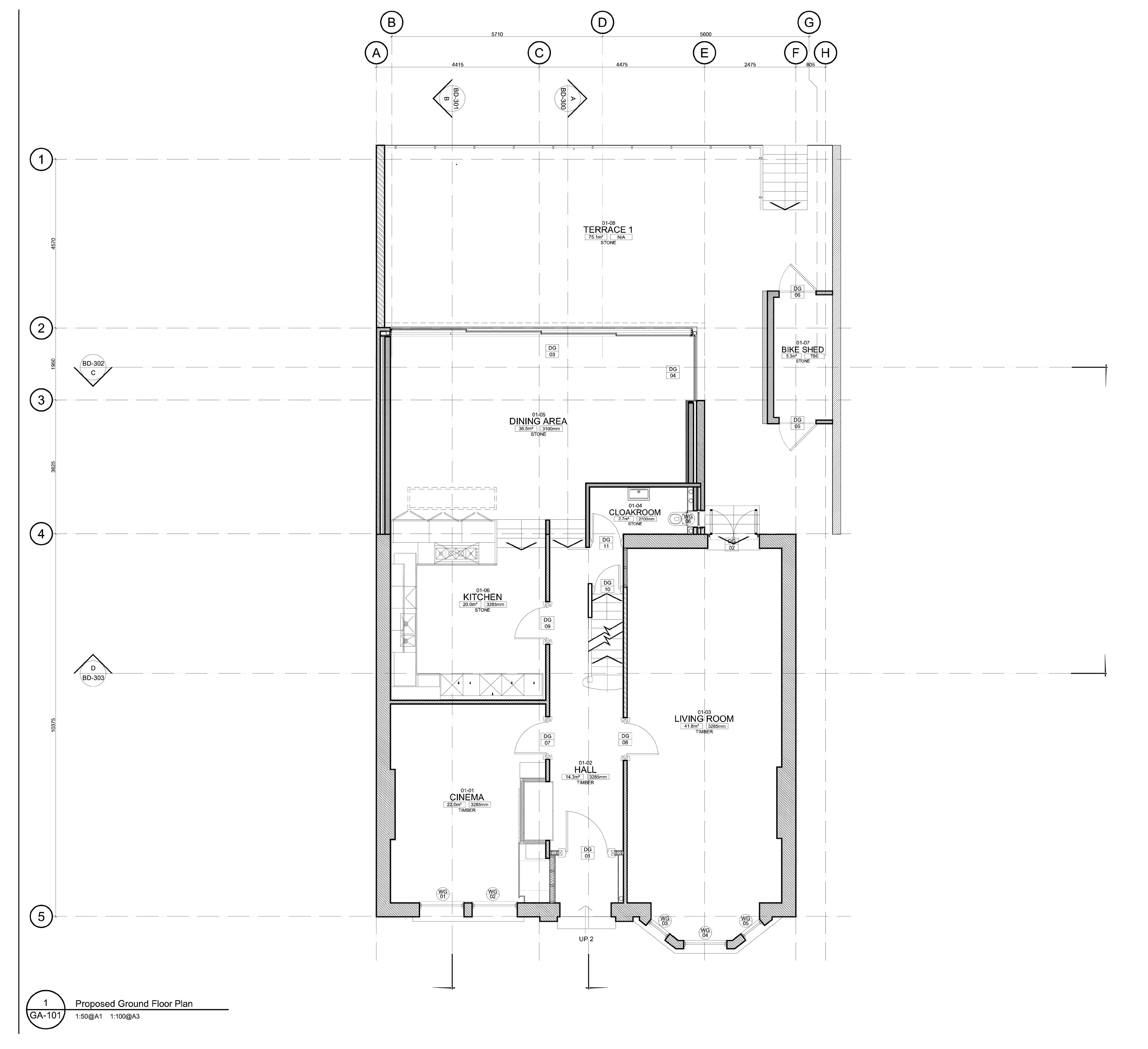
Hemington Avenue comprises of a rearextension to a double-fronted detached family home in Finchley, London. The property had previously been extended to the rear but was disconnected from the garden. The client’s brief was to remodel and extend the rear of the property, creating a large open plan kitchen, living and dining area that extends out onto a raised terrace with views of the garden through Crittal-style doors. Large flat rooflights and glass doors dividing the hallway and open plan area, bring natural light into the deep into the property and offer views through the house and out on to the garden from the moment you enter from the street.

—————————————————————————————————————————————————-

Description

Project Works:

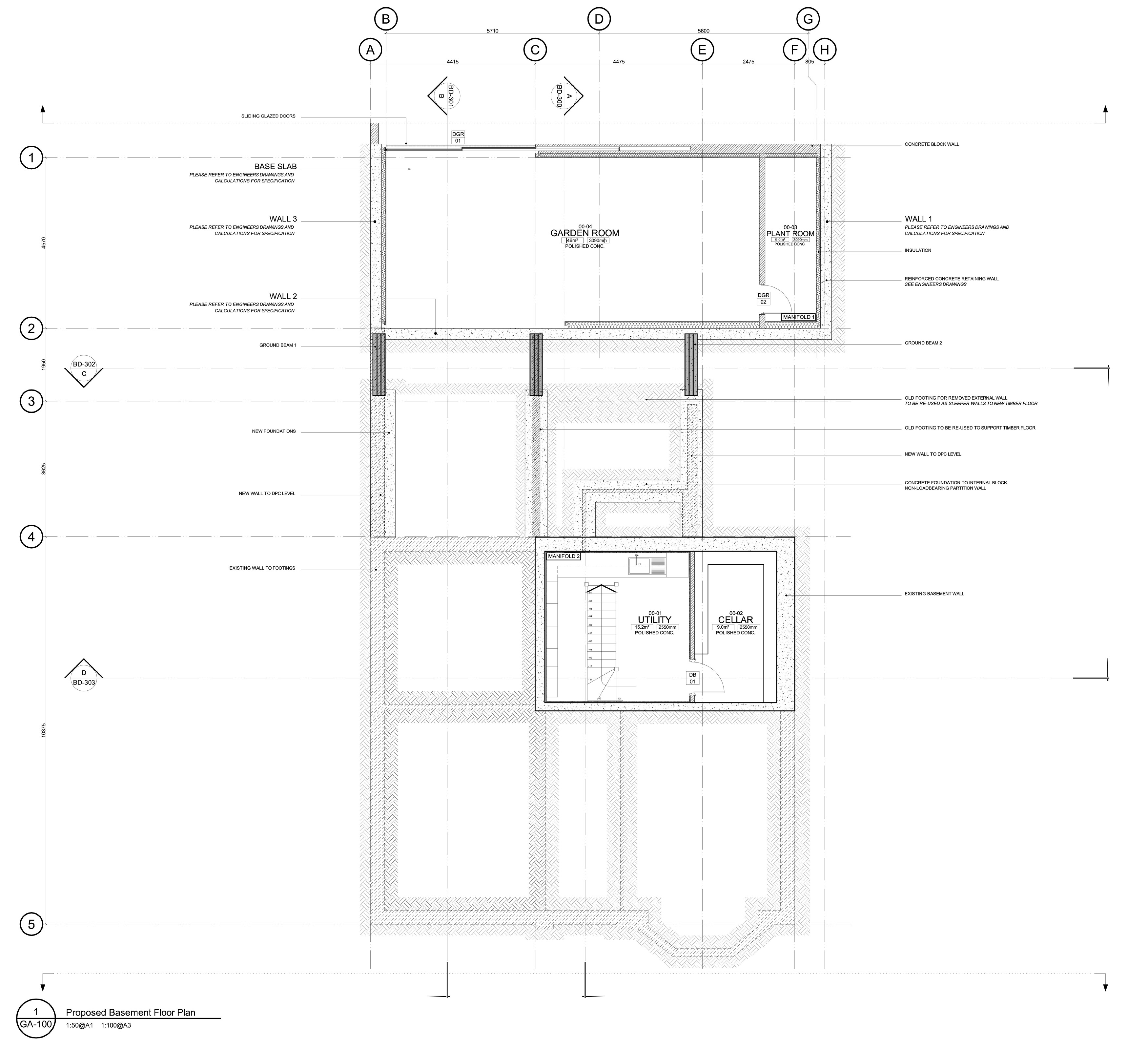
Obtain planning permission and Building Control approval for a single storey rear extension and raised terrace with basement storage area.

Project Brief:

Extend and refurbish a large residential dwelling to a ‘high-end’ standard with provisions for :

  • 3 Large Double Bedrooms.
  • 1 Master Bedroom Suite with Walk-in Wardrobe, Dressing Area, Master Bathroom and Private Gym.
  • En-suite.
  • Bathroom.
  • Cloakroom.
  • Study,Cinema Room,Large Games Room for Ping Pong Table,Wine Cellar,Dedicated Utility Room,Roof Terrace.
  • 2 Living Rooms (formal and informal).
  • 2 Dining Rooms (formal and informal).
  • Terraced garden.
  • landscaped with planting scheme for all seasons.
  • Enlarged terrace at ground floor level operating and an ‘inside-outside’ space with the informal living area, and knife edge effect to garden taking advantage of the topography of the garden.Discreet bicycle parking integrated into a green wall.
  • Interior design that promotes a ‘lifestyle’ space supporting modern living demands in a timeless manner. This addresses use of materials, fixtures, fittings, furnishing, heating and cooling concepts, audio visual, home automation for lighting, heating and security.

Landscaping works to include a weaving staircase running to the lower level of the garden, which is sloping taking on the form of an ancient river. Works included planting schemes for all seasons, irrigation and rainwater harvesting systems.

Design for mechanical and electrical installation includes bespoke design and installation of discreet air-conditioning systems, underfloor heating and a plant room that includes twin boilers, water tanks and variable speed pumps to control and guarantee the pressure and flow of water across the building at any time of the day for any demand.

Project Involvement:

RIBA work stages A-M.

  • Design inception, concept design, design development, technical design.

Project Requirements:

  • Survey site for spatial planning and building control purposes.
  • Generate spatial design concepts addressing clients requirements, develop design in accordance with client’s needs and budget.
  • Obtaining planning approval for all works carried out.
  • Obtaining building control approval for all works carried out.
  • Provision of full construction drawings including structural detailing and fit out detailing.
  • Monitor quality of works, oversee setting out of interior fixtures fittings and installations.
  • Project management of all works from design to completion.
  • Managing and overseeing post completion tasks during 12 months defects period.

—————————————————————————————————————————————————-

Details

Project Status: Sept 2011
Project Value: £1.2m

—————————————————————————————————————————————————-

Date:
Category: