Portfolio

Gloucester Road

Introduction

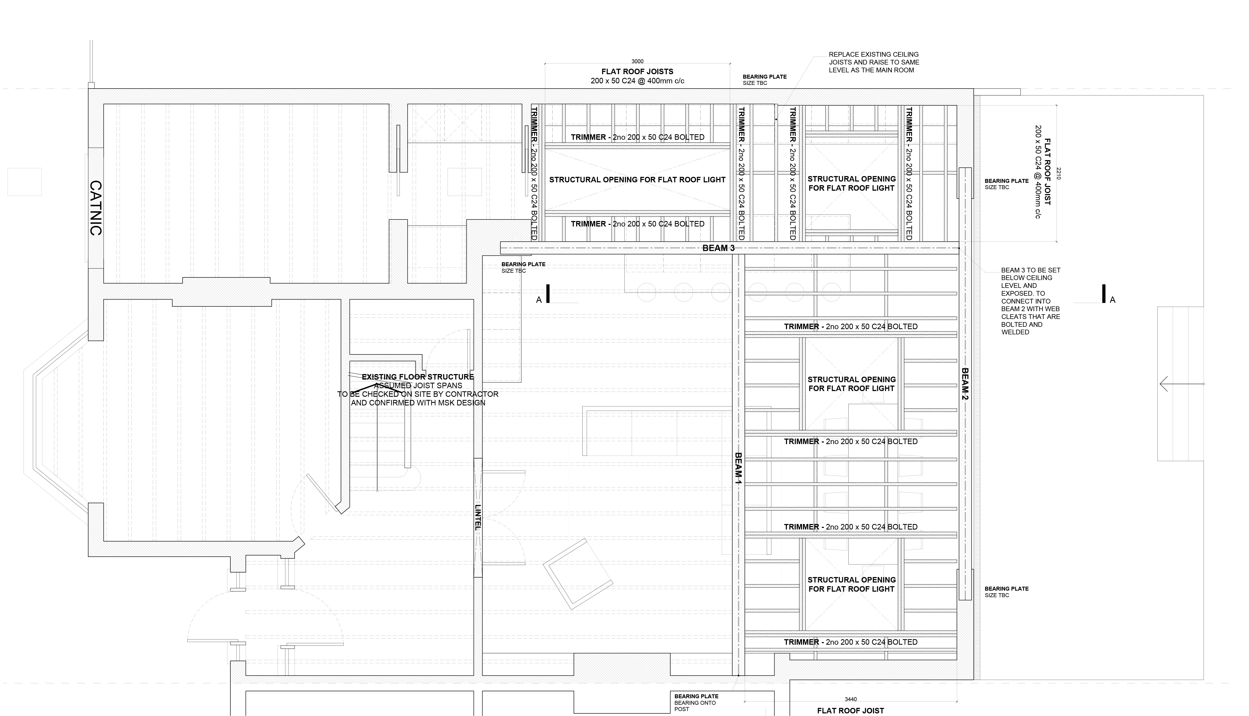
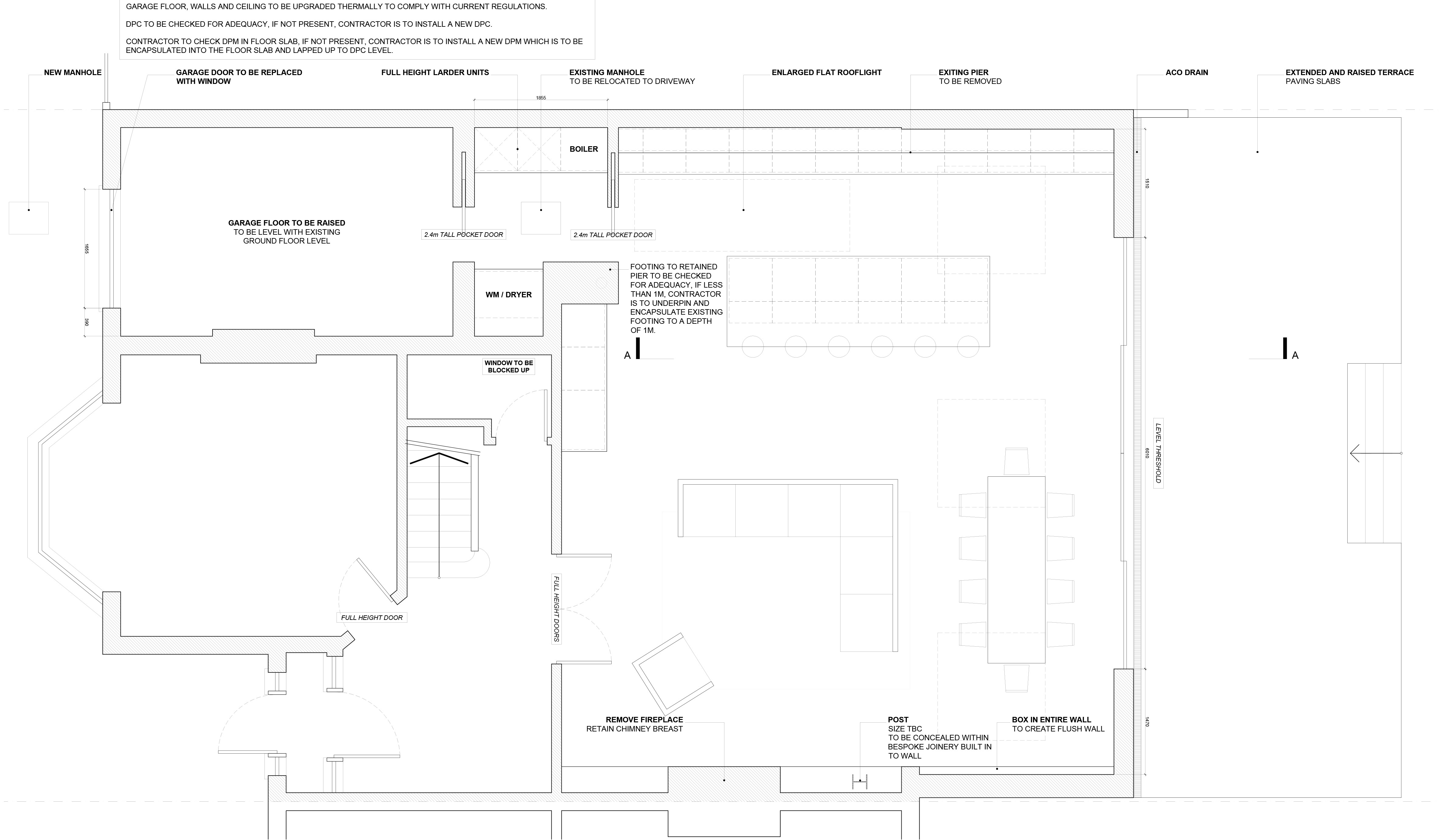
Gloucester Road was targeted for renovation to turn a previous rear extension and garage conversion into a modern-day family home. The brief was to redesign the existing rear extension roof, to maximize the connection between inside and out and create a large open-plan area for the family. Large sliding doors and a raised patio terrace create a greater connection between the new open-plan living area and the garden and an array of flat roof lights bring more light into the property.

An elongated roof light to the side brings in additional natural light to the kitchen area and a redesigned garage conversion with a large street-facing window reinvigorates the space as a bright home office.

—————————————————————————————————————————————————-

Description

Project Works:

Obtain planning permission and Building Control approval for a residential extension.

Project Brief:

To rebuild the existing rear extension roof, create an open plan living, kitchen and dining area to the rear of the house and create a new raised patio to the rear garden to improve the transition between the house and the garden. Provisions for :

  • Enlarged sliding door opening into the garden area.
  • Removal of the original rear wall.
  • Enlarged utility room.
  • Redesign the existing garage conversion.

Project Involvement:

RIBA work stages 0-4.

  • Design inception, concept design, design development, technical design.

Project Requirements:

  • A site survey of the existing property and site.
  • Generate design concepts addressing the client’s requirements and planning policy.
  • Obtaining planning permission for works carried out.
  • Obtaining building control approval for works carried out.
  • Full construction drawings and design, including structural detailing.

—————————————————————————————————————————————————-

Details

Project Completion: Tender stage

Project Value: Unknown
—————————————————————————————————————————————————-

Date: