Portfolio

Friars Avenue

Introduction

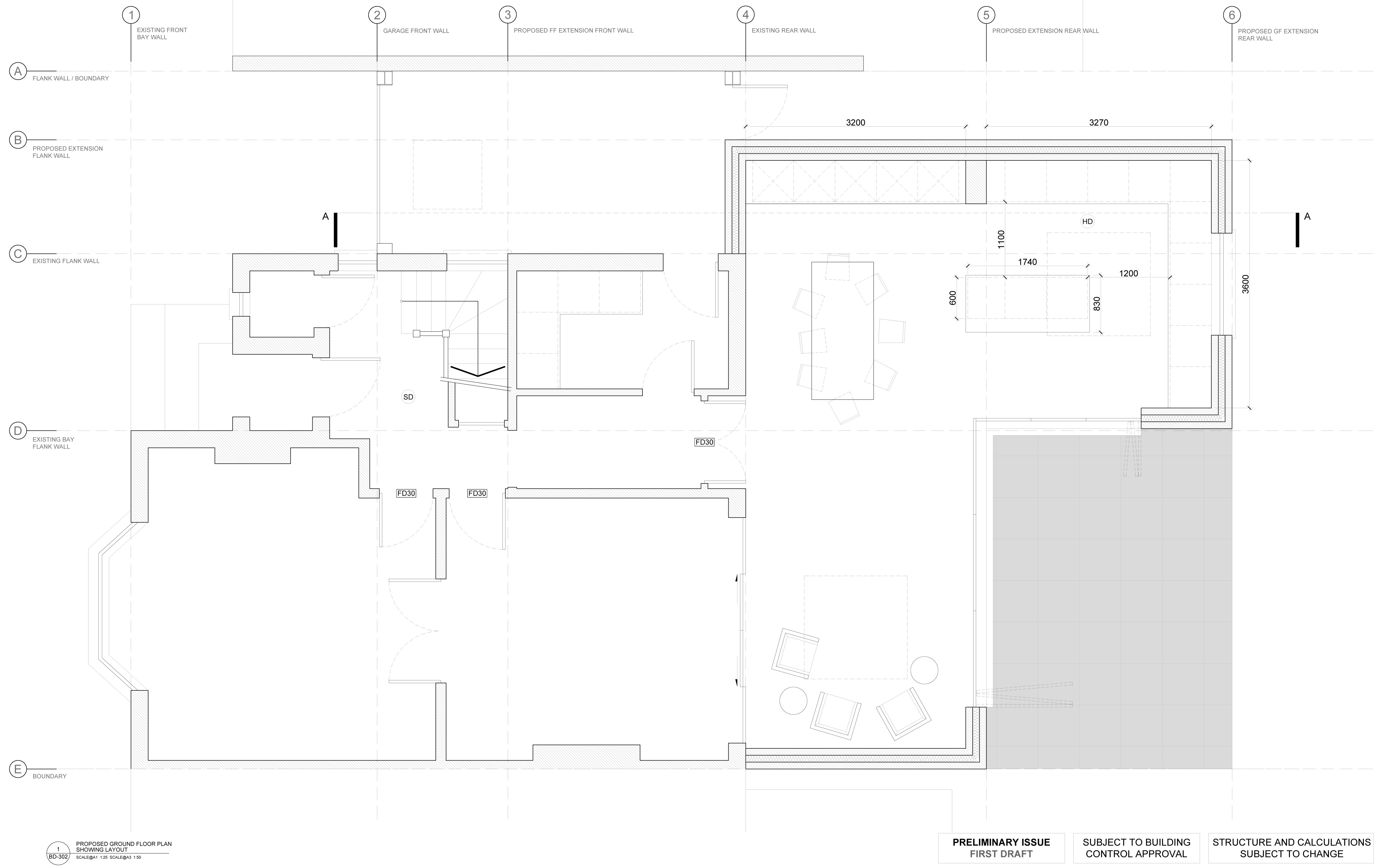
Friars Avenue comprises of a two-storey rear and side extension to a semi-detached family home in Whetstone, London. The client’s found themselves in a common position of having separate living and dining spaces and a small kitchen, all disconnected from one another.

The brief was to extend to the rear and side and remodel the rear of the property to create a large open plan kitchen, living and dining space. The existing garage to the rear allowed us to create an L-shaped extension on the ground floor, with dual-aspect bi-folding doors out onto a private terrace area. An additional first floor bedroom and bathroom were required to cater for the young, growing family’s needs.

—————————————————————————————————————————————————-

Description

Project Works:

Obtain planning permission and Building Control approval for a part single, part two storey rear and side extension to a family dwelling.

Project Brief:

A part single, part two storey side and rear extension, with provisions for :

  • An open plan kitchen, living and dining area to the rear.
  • Utility room.
  • Retention of existing garage.
  • Additional bedroom.
  • Additional first-floor bathroom.

Project Involvement:

RIBA work stages 0-4.

  • Design inception, concept design, design development, technical design

Project Requirements:

  • A site survey of the existing property and site.
  • Generate design concepts addressing the client’s requirements and planning policy.
  • Obtaining planning permission for works carried out.
  • Obtaining building control approval for works carried out.
  • Full construction drawings and design, including structural detailing.
  • Party wall agreement with unattached neighbour.

—————————————————————————————————————————————————-

Details

Project Completion: Awaiting

Project: Unknown
—————————————————————————————————————————————————-

Date: