Portfolio

Elmstead

Introduction

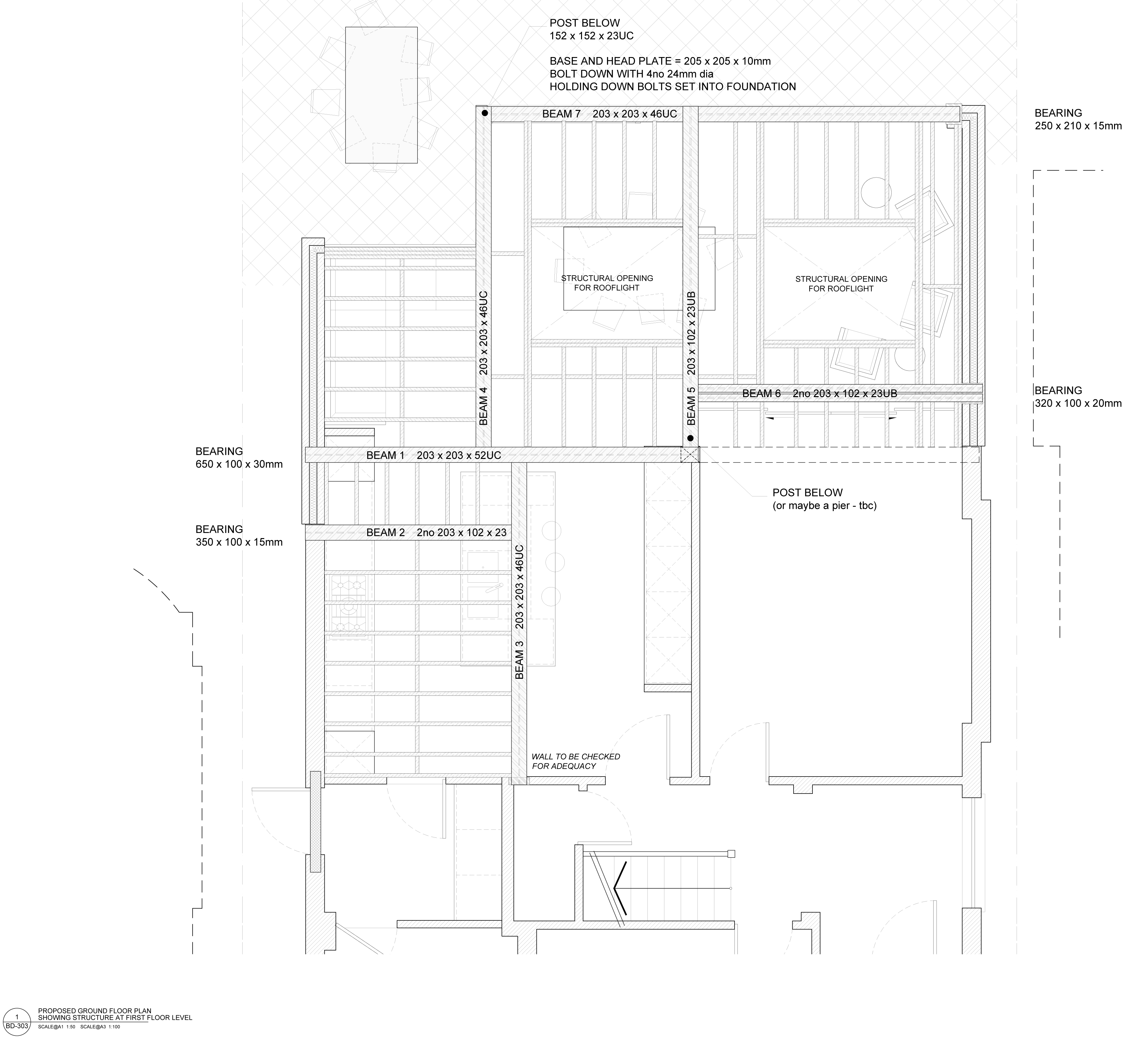
Elmstead, Totteridge, Barnet, N20. Large Single Storey Ground Floor Extension to the side and rear.

—————————————————————————————————————————————————-

Description

Project Works:

Obtain Planning Permission and Building Control approval to extend dwelling. Undertake Party Wall Agreements. Prepare construction and fit out detailing for all works on site.

Project Brief:

Extend residential dwelling with a single storey ground floor extension to the side and rear with level threshold to the terrace.

Works to address modern living standards with an open plan Kitchen/Living/Dining area, that spills out into the garden terrace.

The existing inner Living Room is to be adapted to maintain privacy and maximise natural light from the rear sliding doors.

Development to include provisions for a new utility room, open plan island kitchen, large dining table, and couch seating area.

Project Involvement:

RIBA work stages 0-4

  • Design inception, concept design, design development, technical design.

Project Requirements:

  • Survey site for spatial planning and building control purposes
  • Generate spatial design concepts addressing client’s requirements, develop design in accordance with client’s needs and budget.
  • Obtaining planning approval for all works carried out.
  • Obtaining building control approval for all works carried out.
  • Provision of full construction drawings including structural detailing and fit out detailing.
  • Provision of on-site technical and compliance advice during construction, up to the point of completion and handover.

—————————————————————————————————————————————————

Details

Project Completion : Feb 2015
Project Value: £145,000.00

Date:
Category: