Portfolio

Crown Lane

Introduction

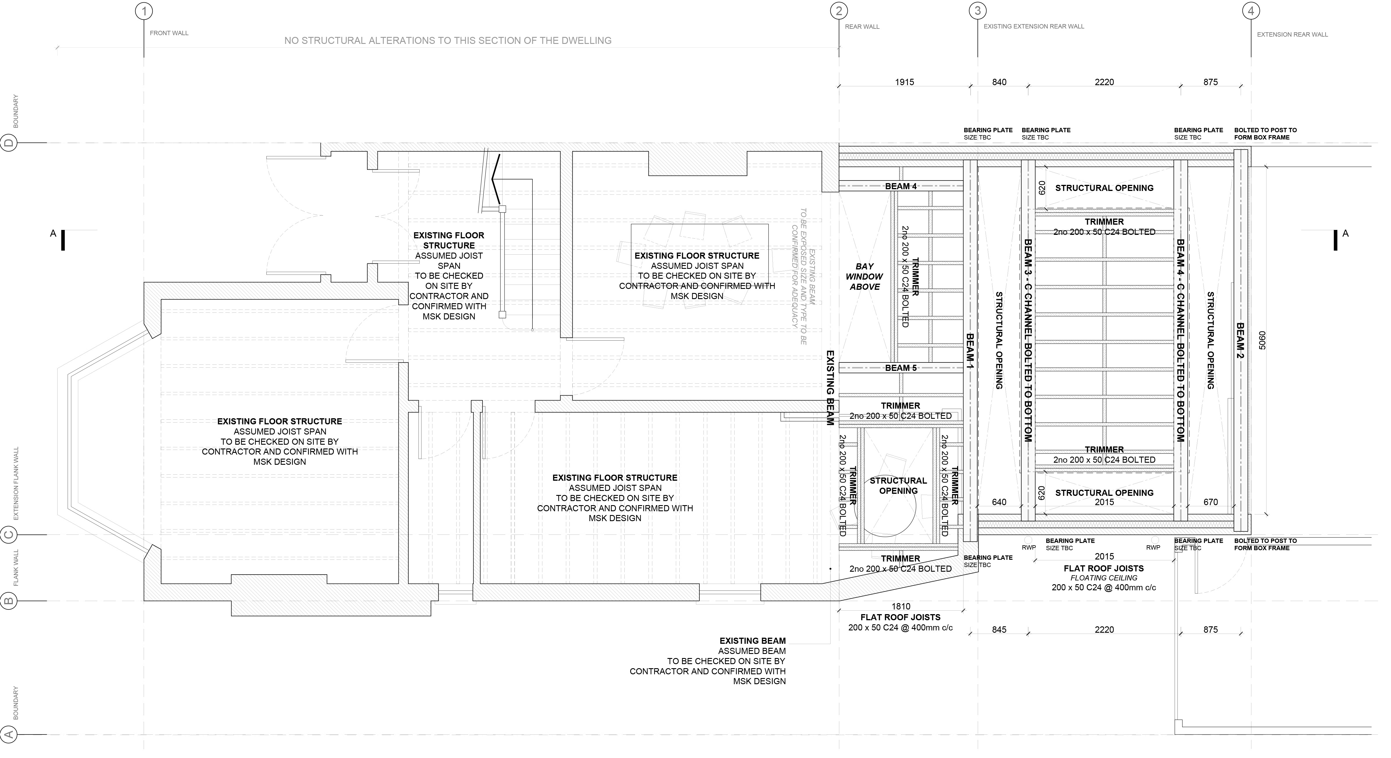
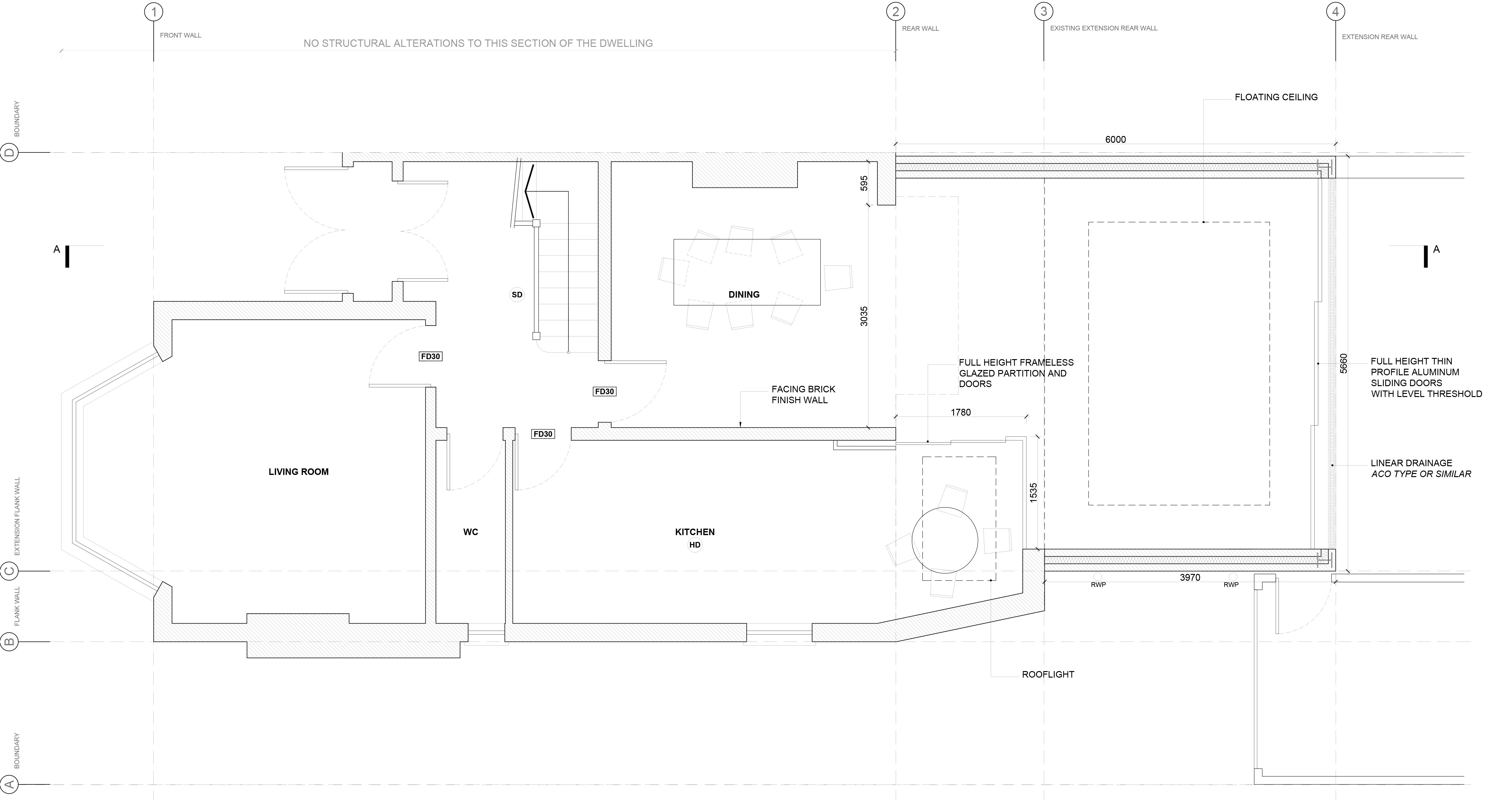
Crown Lane comprises of a unique ground floor rear extension, encompassing the clients brief to extend to the rear, maximise daylight by providing natural light through architectural glazing and upgrade the interior through a contemporary fit-out design.

Our solution featured an extension to the rear with large sliding doors, maximising views out to the garden and a glazed roof border, creating the appearance of a floating central ceiling and bringing in more natural light into the interior. Internal glazed partitions allow the light to circulate from the new extension into the existing kitchen and dining space.
—————————————————————————————————————————————————-

Description

Project Works:

Obtain planning permission and Building Control approval to extend a small family dwelling to there.

Project Brief:

Demolition of an existing conservatory, erection of a single storey rear extension to the rear, with provisions for:

  • Provide natural light to the existing dining area.
  • A contemporary fit-out, including architectural glazing.
  • External terracing and access to the rear via the side passage.
  • Consider feasibility to link the extension to the existing garage and to locate a utility room in the rear of the existing garage.

Project Involvement:

RIBA work stages 0-4.

  • Design inception, concept design, design development, technical design.

Project Requirements:

  • A site survey of the existing property and site.
  • Generate design concepts addressing the client’s requirements and planning policy.
  • Obtaining planning permission for works carried out.
  • Obtaining building control approval for works carried out.
  • Full construction drawings and design, including structural detailing.

—————————————————————————————————————————————————-

Details

Project Completion: Tender stage.

Project: Unknown
—————————————————————————————————————————————————-

Date:
Category: