Portfolio

Clapham SW4

Introduction

Residential Ground Floor Extension And Loft Conversion.

—————————————————————————————————————————————————-

Description

Project Works:

Obtain planning permission and Building Control approval to extend and single family dwelling. Provide interior design and structural design services. Assist with Party Wall Agreement matters. Prepare construction detailing for all works on site.

Project Brief:

Extend a residential single family dwelling to a ‘high-end’ standard with enlarged Kitchen and Dining area, and a new Utility room to the ground floor.
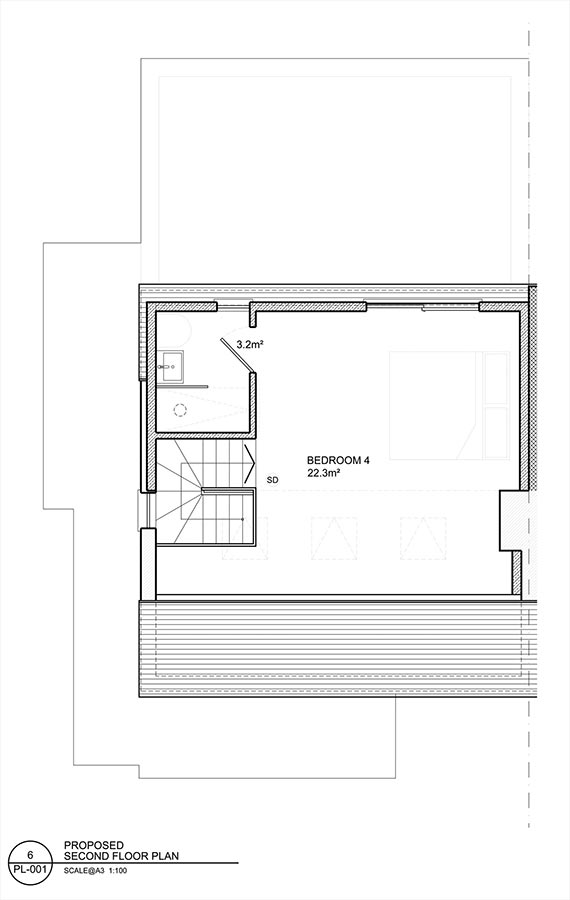
Additional Double Bedroom with En-suite and built-in wardrobes to the loft space. Generate an engineered ‘fire safety’ solution using mist sprinklers for compliance with the current building regulations, to enable the dwelling to maintain an open plan living space on the ground floor.

Project Involvement:

RIBA work stages A-H

  • Design inception, concept design, design development, technical design.

Project Requirements:

  • Survey site for spatial planning and building control purposes.
  • Generate spatial design concepts addressing clients requirements, develop design in accordance with client’s needs and budget.
  • Obtaining planning approval for all works carried out.
  • Obtaining building control approval for all works carried out.
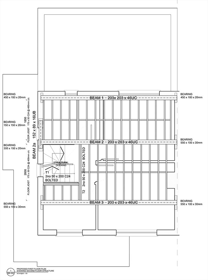
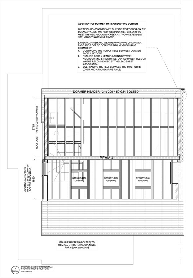
  • Provision of full construction drawings including structural detailing and fit out detailing.
  • Monitor quality of works, oversee setting out of interior fixtures fittings and installations.

—————————————————————————————————————————————————-

Details

Project Completion: April 2014

Project: £85,000.00
—————————————————————————————————————————————————-

Date: