Portfolio

Chester Road

Introduction

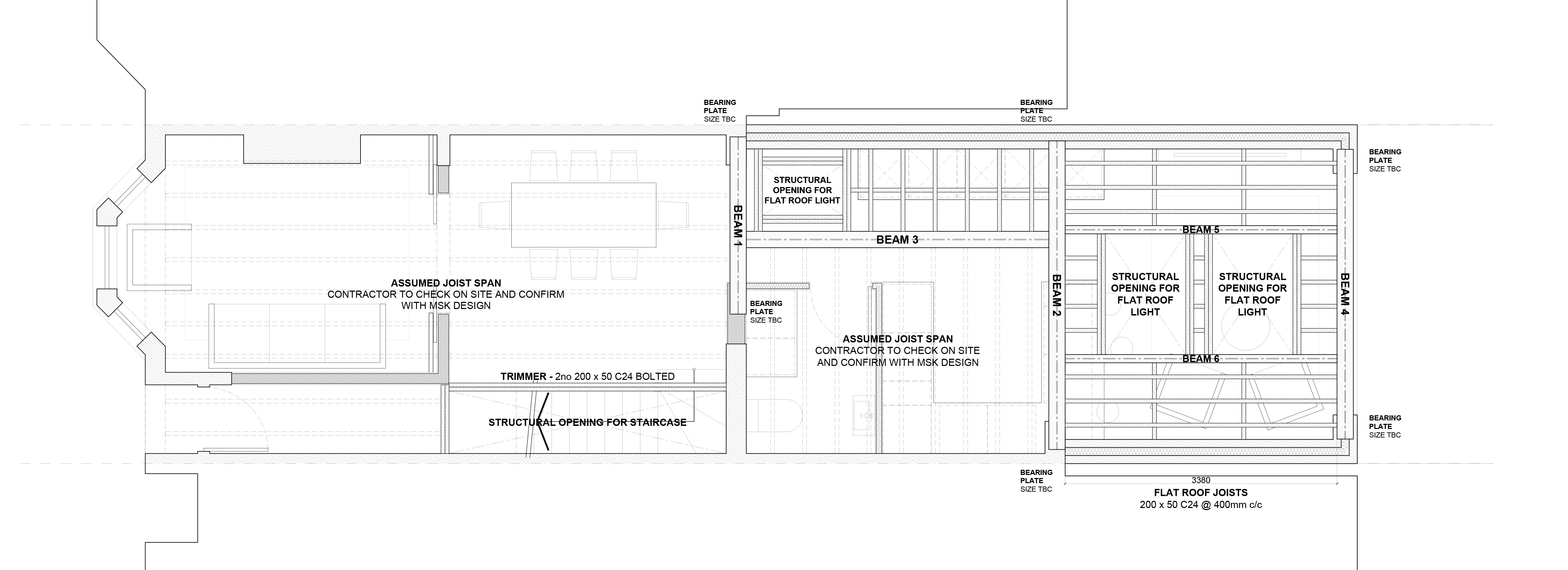
Chester Road was targeted for extension works and refurbishment to turn it into a family home for a young couple. The brief was to extend the ground floor to the side and rear and reconfigure the whole ground floor to create a zoned, open plan area for modern living. Large sliding doors onto the garden and roof lights bring in natural light and connect the inside with the out.

By flipping the staircase, the circulation from the front to the back of the house is greatly improved and reinstating the partition wall between the hallway and front living room and installing pocket doors between the dining and living zones, allows for the spaces to be multi-purpose. The first-floor layout was reconfigured to create a larger second bedroom and walk-in wardrobe for the master bedroom.

—————————————————————————————————————————————————-

Description

Project Works:

Obtain planning permission and Building Control approval for a residential rear and side extension.

Project Brief:

A single storey rear and side extension, with provisions for :

  • Zoned open plan living between the kitchen, living and dining spaces on the ground floor.
  • Large door opening into the garden area.
  • Options of redesigning the staircase up to the first floor.
  • Improve access into the dwelling.
  • Provide separation of the front living area.
  • A utility and WC on the ground floor.
  • Reconfiguration of the first floor, repositioning of the bathroom and creating a wardrobe area for the master bedroom

Project Involvement:

RIBA work stages 0-4.

  • Design inception, concept design, design development, technical design.

Project Requirements:

  • A site survey of the existing property and site.
  • Generate design concepts addressing the client’s requirements and planning policy.
  • Obtaining planning permission for works carried out.
  • Obtaining building control approval for works carried out.
  • Full construction drawings and design, including structural detailing

—————————————————————————————————————————————————-

Details

Project Completion: Tender stage.

Project: Unknown
—————————————————————————————————————————————————-

Date: