Portfolio

Brockenhurst Garden

Introduction

Brockenhurst, Mill Hill, Barnet, NW7.

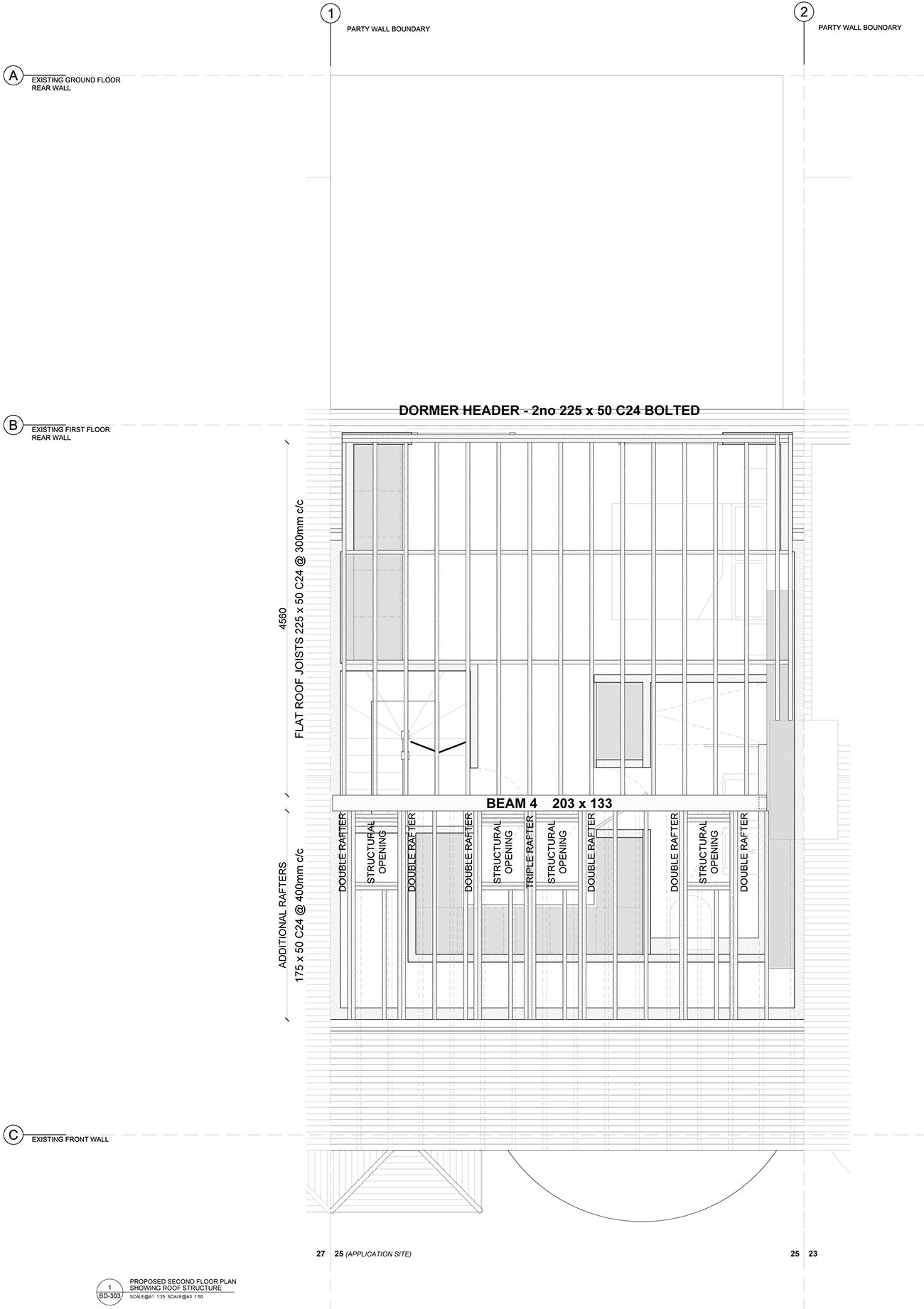
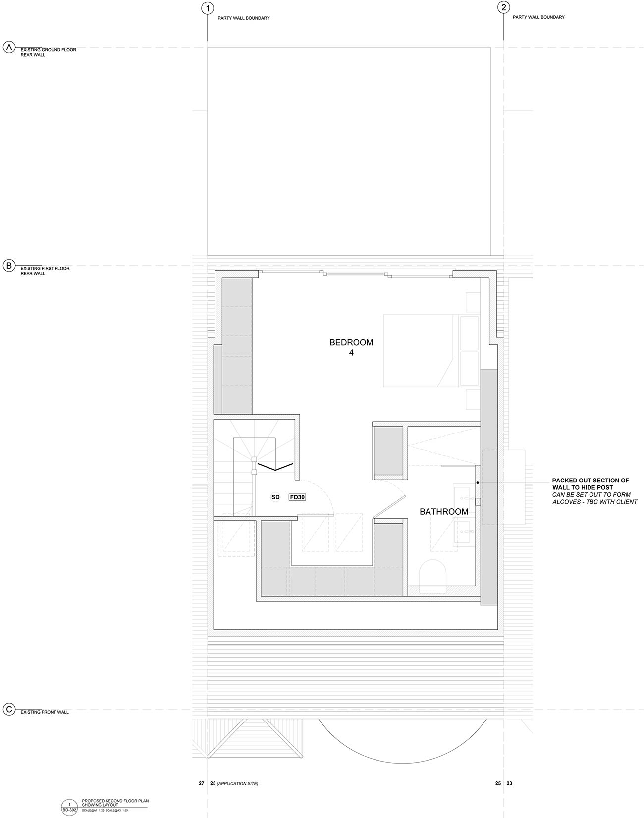
Loft Conversion with Hip to Gable Conversion and a Rear Dormer.

—————————————————————————————————————————————————-

Description

Project Works:

Obtain Planning Permission and Building Control approval to extend dwelling. Assist with Party Wall Agreements. Prepare construction and fit out detailing for all works on site.

Project Brief:

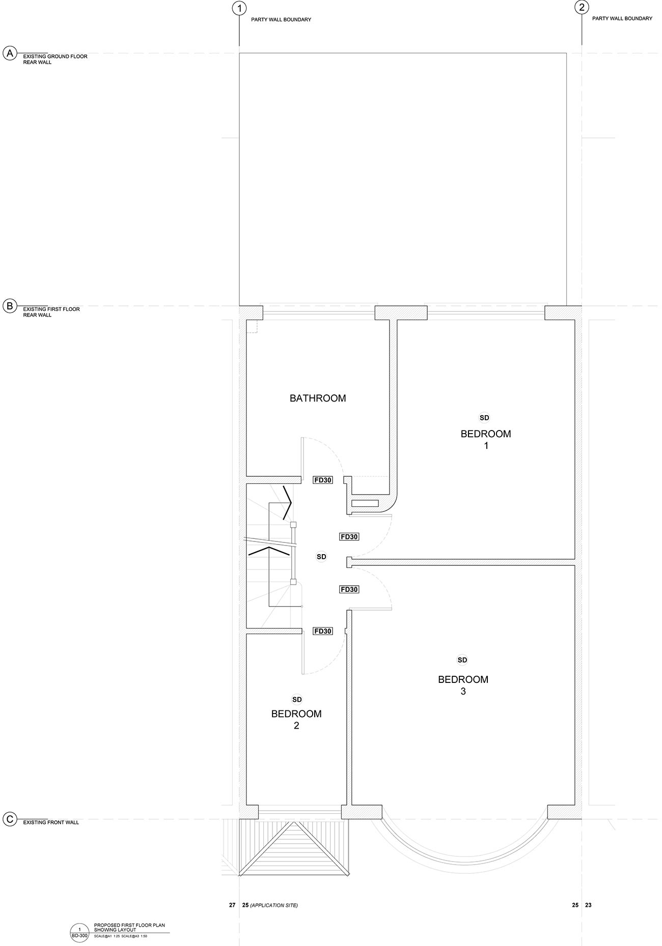
Extend residential dwelling with a loft conversion, to facilitate a new Master Bedroom Suite with a dedicated dressing and wardrobe area and with en-suite.

Project Involvement:

RIBA work stages 0-4

  • Design inception, concept design, design development, technical design.

Project Requirements:

  • Survey site for spatial planning and building control purposes.
  • Generate spatial design concepts addressing client’s requirements, develop design in accordance with client’s needs and budget.
  • A specific request was made to improve upon the plans and spatial configuration of the loft, prepared by a previous architectural designer.
  • Obtaining planning approval for all works carried out.
  • Obtaining building control approval for all works carried out.
  • Provision of full construction drawings including structural detailing and fit out detailing.
  • Provision of on-site technical and compliance advice during construction, up to the point of completion and handover.

—————————————————————————————————————————————————-

Details

Project Completion: Due to Commence Sept 2016
Project Value: £55,000.00

—————————————————————————————————————————————————-

Date: