Portfolio

Belmont Avenue

Introduction

Belmont Avenue, Barnet, EN4.

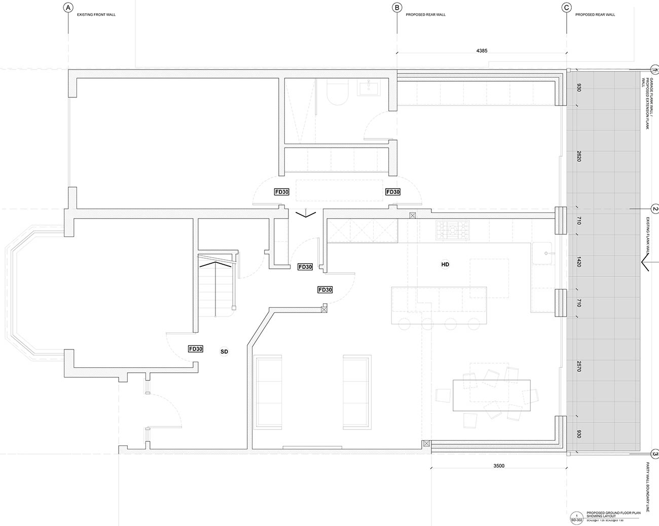
Large Residential Development with Extensions to the ground floor, and a Loft Conversion with Hip to Gable Conversion and a Rear Dormer.

 

—————————————————————————————————————————————————-

Description

Project Works:

Obtain Planning Permission and Building Control approval to extend dwelling. Undertake Party Wall Agreements. Prepare construction and fit out detailing for all works on site.

Project Brief:

  • Extend residential dwelling with a single storey ground floor extension to the side and rear, and a loft conversion.
  • Works to address modern living standards with an open plan Kitchen/Living/Dining area to the rear that opens out to the garden onto a raised terrace.
  • Formation of a large utility area and downstairs WC that with the retained garage can in the future be converted into an Annex.
  • Creation of a new Master Bedroom Suite in the converted loft, with sliding doors facing out to the rear garden.

Project Involvement:

RIBA work stages 0-4

  • Design inception, concept design, design development, technical design.

Project Requirements:

  • Survey site for spatial planning and building control purposes.
  • Generate spatial design concepts addressing client’s requirements, develop design in accordance with client’s needs and budget.
  • Obtaining planning approval for all works carried out.
  • Obtaining building control approval for all works carried out.
  • Provision of full construction drawings including structural detailing and fit out detailing.
  • Provision of on-site technical and compliance advice during construction, up to the point of completion and handover.

—————————————————————————————————————————————————-

Details

Project Completion : Anticipated September 2016
Project Value: £175,000.00

—————————————————————————————————————————————————-

Date: